Đồ án tốt nghiệp bằng Revit cựu học viên đến từ Đại Học Bách Khoa Đà Nẵng năm 2022
Đồ án tốt nghiệp bằng Revit cựu học viên đến từ Đại Học Bách Khoa...
Sep
Ứng dụng Revit vào đồ án tốt nghiệp đạt điểm cao
ứng dụng Revit vào đồ án tốt nghiệp đạt điểm cao. VÌ LÝ DO BẢN...
Aug
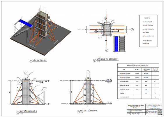
Cựu học viên ứng dụng Revit sau khi hoàn thành khóa học vào đồ án tốt nghiệp đạt điểm cao
========================================== ❗ Khóa học Revit kết cấu online miễn phí tại đây: https://www.youtube.com/watch v=WqKoqDskdcA&list=PL4FiGIIp8Nq8T6oVl5Co1kTqpDxkspgaI...
Aug
Đồ án nền móng làm bằng Revit
Đồ án nền móng làm bằng Revit Xin chào bạn, tôi BIM EDU (Nick FB...
May
Sản phẩm học viên sau khi hoàn thành khóa học Revit áp dụng ngay vào đồ án tốt nghiệp
Sản phẩm học viên sau khi hoàn thành khóa học Revit áp dụng ngay vào...
Mar
HƯỚNG DẪN BẢO VỆ ĐỒ ÁN TỐT NGHIỆP (BẢN ĐẦY ĐỦ NHẤT)
HƯỚNG DẪN BẢO VỆ ĐỒ ÁN TỐT NGHIỆP (BẢN ĐẦY ĐỦ NHẤT) Xin chào bạn,...
Mar
Đồ án tốt nghiệp làm bằng Revit mới nhất năm 2022 Đại Học Sư Phạm Kỹ Thuật Đà Nẵng
Đồ án tốt nghiệp làm bằng Revit mới nhất năm 2022 Đại Học Sư Phạm...
Mar
File Đồ án tốt nghiệp xây dựng dân dụng làm bằng Revit được đánh giá cao
File Đồ án tốt nghiệp xây dựng dân dụng làm bằng Revit được đánh giá...
Jan
Chia sẽ miễn phí Đồ án tốt nghiệp xây dựng dân dụng làm bằng Revit Full kết cấu- kiến trúc- thi công- thuyết minh tính toán
Đồ án tốt nghiệp xây dựng dân dụng làm bằng Revit Sau đây lời cảm...
Dec
Đồ án kỹ thuật thi công 1 bằng revit
Đồ án kỹ thuật thi công bằng revit Xin chào bạn, tôi Văn Thêm (Nick...
Dec
