Biệt thự quê 9×14, 2 tầng file kết cấu kiến trúc autocad
Xin chào bạn, tôi Văn Thêm (Nick FB Develope Partner) đây ạ, zalo tôi : 0978449221
Rất nhiều bạn Inbox trong Page: CTY Thiết kế & Xây dựng BIM House hỏi tôi về một số mẫu nhà mà tôi tổng hợp được, hy vọng sẽ giúp ích đến các bạn, tôi có 1 kho thư viện cả trên100GB nên các bạn muốn tải về hết thì vào các link để tải về nhé.
Có thể liên hệ tôi qua các kênh sau: Zalo : 0978.449.221 , Page FB: Cty BIM House, Group FB: BIM House- BIM Edu
Tiktok: BIM House- BIM Edu

Mặt bằng tổng thể biệt thự

Mặt bằng tâng 1 biệt thự

Mặt đứng biệt thự

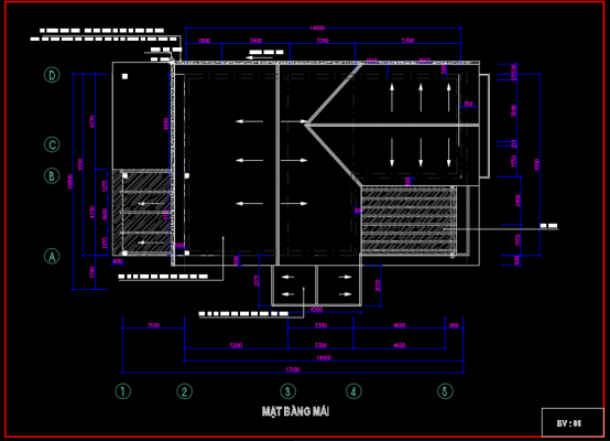
Mặt bằng tầng mái biệt thự
Link tải: Tại đây ( Nếu có pass xem ở tên file)
Dưới đây là một số hình ảnh của công ty tôi chuyên về thiết kế và xây dựng BIM House.



Nếu thấy bài viết hay có ích hãy để lại cho tôi vài lời nhận xét bên dưới nhé, 1like, 1sub kênh để giúp tôi có nguồn động lực chia sẽ được nhiều hơn nữa.
👍 Để được tư vấn thiết kế vui lòng liên hệ chúng tôi qua 1 trong các kênh sau với giá cả và chất lượng hợp lý nhất.
🎯 Website: https://bim-house-edu.com/
📌 Page Facebook: https://www.facebook.com/ThietkevaXaydungnhaDaNang/
📌 Group Facebook: https://www.facebook.com/groups/448020306064880
📌 Youtube: https://www.youtube.com/watch?v=GAanBvSmd1I&t=825s
📌 Group zalo: https://zalo.me/g/vbjjis180
📌 Kênh tiktok: https://vt.tiktok.com/ZSJ3Mo3Yw/
✋ Chúc tất cả các ACE thành công!

