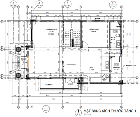
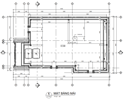
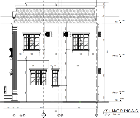
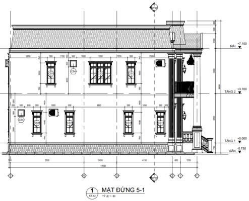
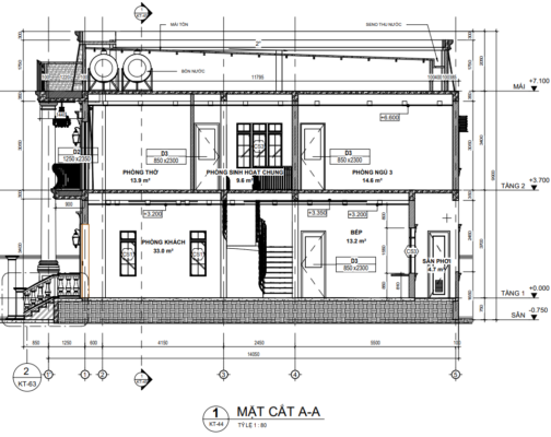
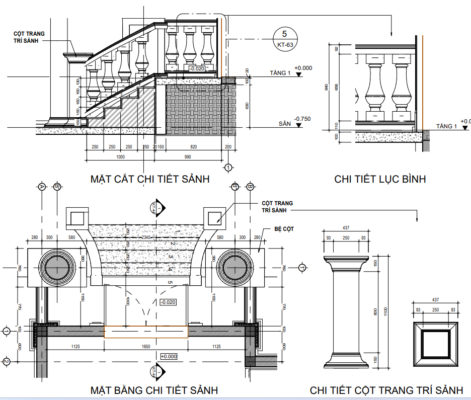
Chia sẽ miễn phí hồ sơ thiết kế biệt thự tân cổ điển file Revit
Tự học Revit Kết cấu | Revit Kiến Trúc | Autocad | Sketchup | Enscape | Etabs miễn phí ,đây là kênh chia sẽ kiến thức hoàn toàn miễn phí.
Xin chào bạn, tôi Văn Thêm (Nick FB Develope Partner) đây ạ, hiện tại tôi sở hữu 1 thư viện khổng lồ trên 1000GB gồm Autocad- Revit- Sketchup- Enscape- Robotstructure- Etabs- Sap, để phục vụ cho các khoá học tại Trung Tâm BIM Edu, tôi thấy Rất nhiều cần nên tôi chia sẽ các bạn, hy vọng sẽ giúp ích đến các bạn, Zalo tôi : 0978449221 .
Có thể liên hệ tôi qua các kênh sau:
Kênh Youtube: BIM Edu ,
Kênh Tiktok: BIM Edu,
Zalo : 0978.449.221,
Page FB: Revit Đà Nẵng,
Page FB: Autocad Đà Nẵng,
Page FB: Cty BIM House,
Group FB: BIM House- BIM Edu
Chia sẽ miễn phí hồ sơ thiết kế nhà phố 3 tầng 5X9 file Revit



















Video hướng dẫn cài Revit | Khóa học Revit Kiến Trúc (Model BIM 3D, Triển khai bản vẽ kỹ thuật thi công kiến trúc bằng Revit Architecture & Enscape kết hợp render hình ảnh, video…)
********++++++++********
Video hướng dẫn cài Revit | Khóa học Revit Kết Cấu+ Kiến Trúc (Model BIM 3D, Triển khai bản vẽ kỹ thuật thi công kết cấu, bốc tách khối lượng… kết cấu bằng Revit Structure)
********++++++++********
Video hướng dẫn cài Etabs| Khóa học Etabs (Tính toán phân tích Etabs)
********++++++++********
Video hướng dẫn cài Sketchup | Khóa học Kiến trúc- Nội thất sketchup (Thiết kế 3D Ngoại thất, Nội thất bằng Sketchup kết hợp Enscape. )
********++++++++********
Autocad Cơ bản- Nâng cao (kỹ năng dựng hình nhanh, quản lý bản vẽ như DIM, Text, Layer, block…) Quản lý, In ấn bản vẽ đúng tỷ lệ, đúng kích thước khổ giấy..
********++++++++********
Video Khóa học Mô hình, phân tích, tính toán, kiểm tra và thiết kế kết cấu chuyên nghiệp theo công nghệ BIM bằng Phần mềm Robot Structural Analysis
==========================================
Để tải file về tham khảo các trải qua 2 bước sau:
Bước 1: Chia sẽ công khai bài viết này lên tường cá nhân facebook của bạn
Bước 2: Chụp lại màn hình đã chia sẽ sau đó gửi qua Zalo 0978 449 221 để nhận file.

==========================================
❗ Khóa học Revit kết cấu online miễn phí tại đây: https://www.youtube.com/watch v=WqKoqDskdcA&list=PL4FiGIIp8Nq8T6oVl5Co1kTqpDxkspgaI
❗ Khóa học Revit kiến trúc online miễn phí tại đây: https://www.youtube.com/watch?v=pWN6lMmnFXQ&list=PL4FiGIIp8Nq9Qomvq10T_15RnVPafZxY_
❗ Khóa học Revit Autocad online miễn phí tại đây: https://www.youtube.com/watch?v=ihPvg3Zx9NU&list=PL4FiGIIp8Nq95CUA597tu3APLC9ADNCQh
❗ Khóa học SKETCHUP+ ENSCAPE online miễn phí tại đây: https://www.youtube.com/watch?v=ihPvg3Zx9NU&list=PL4FiGIIp8Nq95CUA597tu3APLC9ADNCQh
❗ Khóa học Revit Etabs online miễn phí tại đây: https://www.youtube.com/watch?v=AJdt4EwZ7to&list=PL4FiGIIp8Nq-n-l8eQoMt4XJaBUDuJaZR
❗ Tổng hợp thư viện miễn phí tại đây: https://www.youtube.com/watch?v=fwmv9cPDDgs&list=PL4FiGIIp8Nq_nuS12V2BoUD4qDgxaafxv
==========================================
?Link cài đặt phần mềm Revit tại đây: https://bim-house-edu.com/chuyen-muc/phan-mem-revit
?Link cài đặt phần mềm Autocad tại đây: https://bim-house-edu.com/chuyen-muc/phan-mem-autocad
?Link cài đặt phần mềm SKETCHUP tại đây: https://bim-house-edu.com/chuyen-muc/phan-mem-etabs
?Link cài đặt phần mềm Etabs tại đây: https://bim-house-edu.com/chuyen-muc/phan-mem-etabs
==========================================
✔️Link cài đặt Naviate Revit 2019, Naviate Revit 2020, Naviate Revit 2021… tại đây: https://bim-house-edu.com/chuyen-muc/naviate
✔️Link cài đặt Enscape Revit tại đây: https://bim-house-edu.com/chuyen-muc/enscape
==========================================
?Link tham khảo Dự án bằng Revit tại đây: https://bim-house-edu.com/chuyen-muc/do-an-revit
?Link tham khảo Dự án bằng Autocad tại đây: https://bim-house-edu.com/chuyen-muc/du-an-autocad
==========================================
⛔Link cài bài tập thực hành Revit Khóa học online miễn phí tại đây: https://bim-house-edu.com/chuyen-muc/bai-tap-khoa-hoc-revit-online
==========================================
?Link đăng ký các khóa học Autocad- Revit- Etabs có phí tại đây: https://bim-house-edu.com/chuyen-muc/tuyen-sinh
==========================================
⚡️⚡️LIÊN HỆ NGAY ĐỂ ĐƯỢC TƯ VẤN MIỄN PHÍ:
? Địa chỉ: 92 Đặng Huy Trứ (gần ĐHBK Đà Nẵng)
☎ Hotline/ Zalo: 0978449221
? Website: https://bim-house-edu.com/
? Page Facebook thiết kế: https://www.facebook.com/ThietkevaXaydungnhaDaNang/
? Page Facebook Autocad: https://www.facebook.com/dayautocaddanang
? Page Facebook Revit: https://www.facebook.com/HocRevitDaNang
? Group facebook: https://www.facebook.com/groups/448020306064880
? Kênh Youtube: https://www.youtube.com/channel/UCH0ij8wlyNxOFtnLsSnuXuQ
? Group Zalo https://zalo.me/g/vbjjis180
? Kênh Tiktok https://vt.tiktok.com/ZSJ3Mo
Nếu thấy bài viết hay có ích hãy để lại cho tôi vài lời nhận xét bên dưới nhé, 1like, 1sub kênh để giúp tôi có nguồn động lực chia sẽ được nhiều hơn nữa.
Chúc tất cả các ACE thành công!
LINK TẢI file DỰ ÁN BT TÂN CỔ ĐIỂN đầy đủ: Tại đây
LẤY MẬT KHẨU GIẢI NÉN TẠI ĐÂY: Tại đây
XEM THÊM CÁC THƯ VIỆN TƯƠNG TỰ KHÁC TẠI ĐÂY
==========================================
#BIM_House #Tự_học_Revit #Tự_học_Revit_online #Tự_học_Revit_kết_cấu #Tự_học_Revit_kiến_trúc #Tu_hoc_revit_ket_cau #Tự_học_Revit_kết_cấu_online #Tự_học_Revit_kiến_trúc_online #Tu_hoc_revit_ket_cau_online #Tu_hoc_revit_kien_truc_online #Tu_hoc_etabs_online #Tự_học_etabs_online #Tu_hoc_etabs #Tự_học_etabs #BIM_Edu #hoc_etabs #Khai_bao_vat_lieu_etabs #hoc_etabs_nha_pho #etabs #khai_bao_tiet_dien_etabs #Caidatetabs #Etabs_co_ban_nang_cao #revit #autocad #autocad_xay_dung #revit_structure #Revit_architecture #Revit_ket_cau #Revit_kien_truc #Thicongdanang #Xaynhadanang #Xaydungnhadanang #Thietkenhaphodanang #Thietkebietthudanang #Thietkexanhdanang #Thicongbietthudanang #Xaynhadananggiare #Xaynhadananguytin #Thietkenhauytin #Thietkevathicongnhagiaredanang #video_shorts #shorts #videoshorts #sketchup #hoc_sketchup #tu_hoc_sketchup #hoc_sketchup_co_ban #sketchup_co_ban #Tự_học_sketchup #Tự_học_sketchup_online #Tự_học_sketchup_co_ban #Tự_học_sketchup_cơ_bản_nâng_cao #Tu_hoc_sketchup #Tự_học_sketchup_online #Tự_học_sketchup_kiến_trúc_online #Tu_hoc_revit_sketchup_online #BIMhouse #ThietKeThiCongTronGoi #Thietkenhadanang #thietkenha #Thietkekhonggiandep #Thietkenhadep #Thietkenhatrongoi #Thietkegiare #Thiconggiare #Thicongnha #Thicongnhapho #Thietkethicongnhatrongoi #Thicongdanang #Xaynhadanang #Xaydungnhadanang #Thietkenhaphodanang #Thietkebietthudanang #Thietkexanhdanang #Thicongbietthudanang #Xaynhadananggiare #Xaynhadananguytin #Thietkenhauytin #Thietkevathicongnhagiaredanang #Thietkevaxaynhagiaredanang
#Sketchup
#enscape
#autocad
#Revit_online
#Revit_kết_cấu
#Revit_kiến_trúc
#biệt_thự_đẹp
#biệt_thự_tân_cổ_điển
#biet_thu_dep
#biet_thu_tan_co_dien_2023
#biet_thu_2023

