Cựu học viên chia sẽ Đồ án tốt nghiệp ngành tin học xây dựng Đại Học Bách Khoa Đà Nẵng làm bằng Revit

Rất nhiều bạn Inbox nên tôi chia sẽ các bạn, hy vọng sẽ giúp ích đến các bạn. Có thể liên hệ tôi qua các kênh sau: Zalo : 0978.449.221, Page FB: Revit Đà Nẵng, Page FB: Autocad Đà Nẵng, Page FB: Cty BIM House, Group FB: BIM House- BIM Edu


Mô hình hóa kết cấu

Triển khai thép móng bằng Revit

Triển khai thép cọc khoan nhồi bằng Revit

Triển khai thép dầm bằng Revit

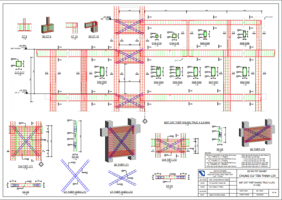
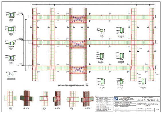
Triển khai thép cột bằng Revit

Triển khai thép cột bằng Revit

Triển khai thép cột bằng Revit

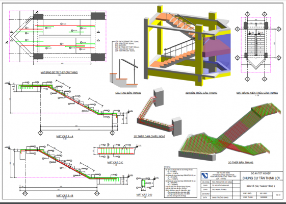
Triển khai thép cầu thang bằng Revit

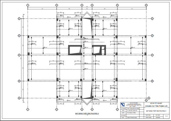
Triển khai thép sàn bằng Revit

VÌ LÝ DO BẢN QUYỀN NÊN CHÚNG TÔI KHÔNG ĐỂ LINK Ở ĐÂY, BẠN NÀO THỰC SỰ CẦN THÌ HÃY.
Bước 1: Chia sẽ công khai bài viết này lên tường cá nhân facebook của bạn.
Bước 2: SUB các kênh Kênh Youtube: BIM Edu , Kênh Tiktok: BIM Edu, và Kênh FaceBook: Autocad Đà Nẵng,
Bước 3: Chụp lại màn hình đã chia sẽ , màn hình đã sub các kênh trên, sau đó gửi qua Page FB: Revit Đà Nẵng, để nhận file.
Trân trọng thông báo!
==========================================
❗ Khóa học Revit kết cấu online miễn phí tại đây: https://www.youtube.com/watch v=WqKoqDskdcA&list=PL4FiGIIp8Nq8T6oVl5Co1kTqpDxkspgaI
❗ Khóa học Revit kiến trúc online miễn phí tại đây: https://www.youtube.com/watch?v=pWN6lMmnFXQ&list=PL4FiGIIp8Nq9Qomvq10T_15RnVPafZxY_
❗ Khóa học Revit Autocad online miễn phí tại đây: https://www.youtube.com/watch?v=ihPvg3Zx9NU&list=PL4FiGIIp8Nq95CUA597tu3APLC9ADNCQh
❗ Khóa học Revit Etabs online miễn phí tại đây: https://www.youtube.com/watch?v=AJdt4EwZ7to&list=PL4FiGIIp8Nq-n-l8eQoMt4XJaBUDuJaZR
❗ Tổng hợp thư viện miễn phí tại đây: https://www.youtube.com/watch?v=fwmv9cPDDgs&list=PL4FiGIIp8Nq_nuS12V2BoUD4qDgxaafxv
==========================================
🌱Link cài đặt phần mềm Revit tại đây: https://bim-house-edu.com/chuyen-muc/phan-mem-revit
🌱Link cài đặt phần mềm Autocad tại đây: https://bim-house-edu.com/chuyen-muc/phan-mem-autocad
🌱Link cài đặt phần mềm Etabs tại đây: https://bim-house-edu.com/chuyen-muc/phan-mem-etabs ==========================================
✔️Link cài đặt Naviate Revit 2019, Naviate Revit 2020, Naviate Revit 2021… tại đây: https://bim-house-edu.com/chuyen-muc/naviate
✔️Link cài đặt Enscape Revit tại đây: https://bim-house-edu.com/chuyen-muc/enscape ==========================================
👍Link tham khảo Dự án bằng Revit tại đây: https://bim-house-edu.com/chuyen-muc/do-an-revit
👍Link tham khảo Dự án bằng Autocad tại đây: https://bim-house-edu.com/chuyen-muc/du-an-autocad ==========================================
⛔Link cài bài tập thực hành Revit Khóa học online miễn phí tại đây: https://bim-house-edu.com/chuyen-muc/bai-tap-khoa-hoc-revit-online
==========================================
🔒Link đăng ký các khóa học Autocad- Revit- Etabs có phí tại đây: https://bim-house-edu.com/chuyen-muc/tuyen-sinh
==========================================
⚡️⚡️LIÊN HỆ NGAY ĐỂ ĐƯỢC TƯ VẤN MIỄN PHÍ:
🏡 Địa chỉ: 92 Đặng Huy Trứ (gần ĐHBK Đà Nẵng)
☎ Hotline/ Zalo: 0978449221
🎯 Website: https://bim-house-edu.com/
📌 Page Facebook thiết kế: https://www.facebook.com/ThietkevaXaydungnhaDaNang/
📌 Page Facebook Autocad: https://www.facebook.com/dayautocaddanang
📌 Page Facebook Revit: https://www.facebook.com/HocRevitDaNang
📌 Group facebook: https://www.facebook.com/groups/448020306064880
📌 Kênh Youtube: https://www.youtube.com/channel/UCH0ij8wlyNxOFtnLsSnuXuQ
📌 Group Zalo https://zalo.me/g/vbjjis180
📌 Kênh Tiktok https://vt.tiktok.com/ZSJ3Mo
Các bạn cho tôi một lời cảm nhận ở dưới comment để tạo nguồn động lực lớn để tôi tạo ra nhiều hơn.

