Xin chào bạn, tôi Văn Thêm (Nick FB Develope Partner) : Zalo : 0978.449.221, Page FB: Revit Đà Nẵng, Page FB: Autocad Đà Nẵng, Page FB: Cty BIM House, Group FB: BIM House- BIM Edu
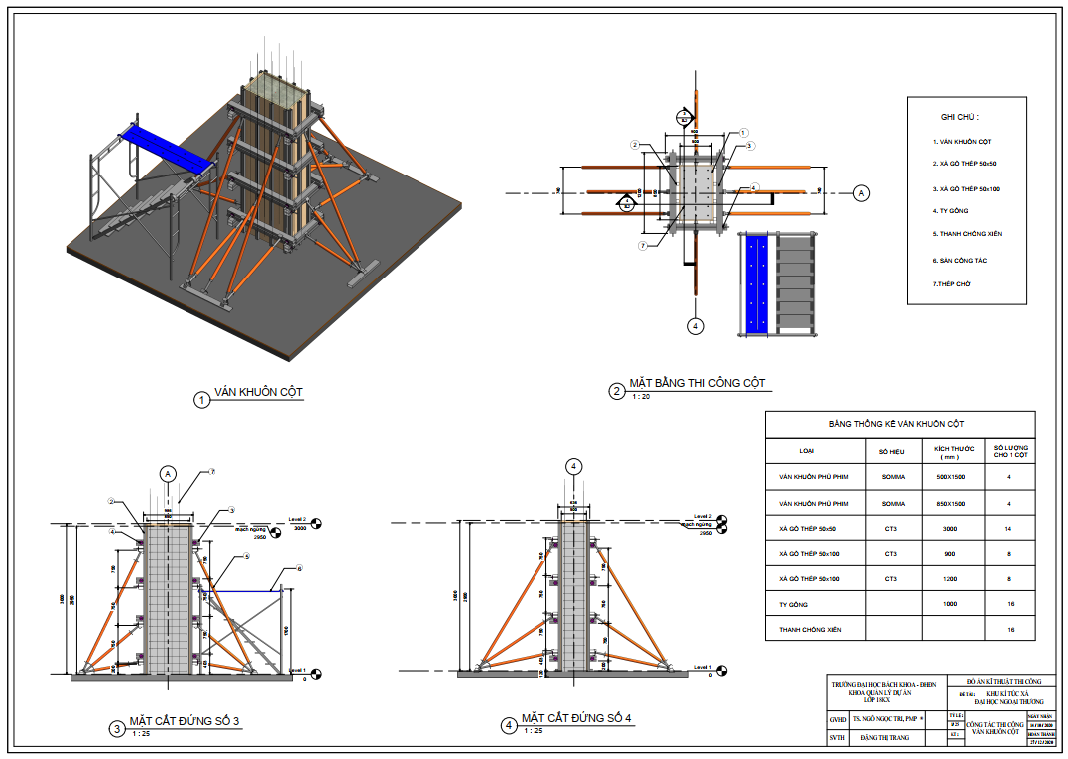
Đồ án kỹ thuật thi công làm bằng Revit của học viên học tại BIM EDu 92 Đặng Huy Trứ sau khi hoàn thành khóa học đã gửi tặng Trung Tâm , đây là đồ án môn học đầu tiên em được làm bằng Revit






Vì lý do bản quyên nên chúng tôi không thể để link lên đây, bạn nào thực sự cần thì làm theo.
Để tải file về tham khảo các trải qua 2 bước sau:
Bước 1: SUB KÊNH NÀY LINK ĐÂY và SAU ĐÓ Chia sẽ BÀI VIẾT NÀY công khai lên tường cá nhân facebook
Bước 2: Chụp lại màn hình đã chia sẽ sau đó gửi qua KÍCH VÀO ĐÂY để nhận nhé.
Trân trọng thông báo!
LẤY MẬT KHẨU GIẢI NÉN TẠI ĐÂY: Tại đây
XEM THÊM CÁC THƯ VIỆN TƯƠNG TỰ KHÁC TẠI ĐÂY
==========================================
❗ Khóa học Revit kết cấu online miễn phí tại đây: https://www.youtube.com/watch v=WqKoqDskdcA&list=PL4FiGIIp8Nq8T6oVl5Co1kTqpDxkspgaI
❗ Khóa học Revit kiến trúc online miễn phí tại đây: https://www.youtube.com/watch?v=pWN6lMmnFXQ&list=PL4FiGIIp8Nq9Qomvq10T_15RnVPafZxY_
❗ Khóa học Revit Autocad online miễn phí tại đây: https://www.youtube.com/watch?v=ihPvg3Zx9NU&list=PL4FiGIIp8Nq95CUA597tu3APLC9ADNCQh
❗ Khóa học Revit Etabs online miễn phí tại đây: https://www.youtube.com/watch?v=AJdt4EwZ7to&list=PL4FiGIIp8Nq-n-l8eQoMt4XJaBUDuJaZR
❗ Tổng hợp thư viện miễn phí tại đây: https://www.youtube.com/watch?v=fwmv9cPDDgs&list=PL4FiGIIp8Nq_nuS12V2BoUD4qDgxaafxv
==========================================
?Link cài đặt phần mềm Revit tại đây: https://bim-house-edu.com/chuyen-muc/phan-mem-revit
?Link cài đặt phần mềm Autocad tại đây: https://bim-house-edu.com/chuyen-muc/phan-mem-autocad
?Link cài đặt phần mềm Etabs tại đây: https://bim-house-edu.com/chuyen-muc/phan-mem-etabs ==========================================
✔️Link cài đặt Naviate Revit 2019, Naviate Revit 2020, Naviate Revit 2021… tại đây: https://bim-house-edu.com/chuyen-muc/naviate
✔️Link cài đặt Enscape Revit tại đây: https://bim-house-edu.com/chuyen-muc/enscape ==========================================
?Link tham khảo Dự án bằng Revit tại đây: https://bim-house-edu.com/chuyen-muc/do-an-revit
?Link tham khảo Dự án bằng Autocad tại đây: https://bim-house-edu.com/chuyen-muc/du-an-autocad ==========================================
⛔Link cài bài tập thực hành Revit Khóa học online miễn phí tại đây: https://bim-house-edu.com/chuyen-muc/bai-tap-khoa-hoc-revit-online
==========================================
?Link đăng ký các khóa học Autocad- Revit- Etabs có phí tại đây: https://bim-house-edu.com/chuyen-muc/tuyen-sinh
==========================================
Tải “File Đồ án kỹ thuật thi công làm bằng Revit ”: Tại đây
Các bạn cho tôi một lời cảm nhận ở dưới comment để tạo nguồn động lực lớn để tôi tạo ra nhiều hơn

