Xin chào bạn, tôi Văn Thêm (Nick FB Develope Partner) đây ạ, zalo tôi : 0978449221 Rất nhiều bạn Inbox nên tôi chia sẽ các bạn, hy vọng sẽ giúp ích đến các bạn. Có thể liên hệ tôi qua các kênh sau: Zalo : 0978.449.221 ,Page FB: Revit Đà Nẵng, Page FB: Autocad Đà Nẵng, Page FB: Cty BIM House, Group FB: BIM House- BIM Edu

Luôn luôn đem đến cho các bạn những file cad chất lượng nhất, cần thiết nhất trong ngành xây dựng này. File cad nhà công nghiệp 2 tầng cũng không phải là một ngoại lệ, bản vẽ cad này sẽ tiếp tục góp thêm phần làm cho kho thư viện, bản vẽ của chúng tôi thêm đầy đủ và phong phú. Mời các bạn cùng tham khảo chi tiết hơn về file cad dưới bày viết này:

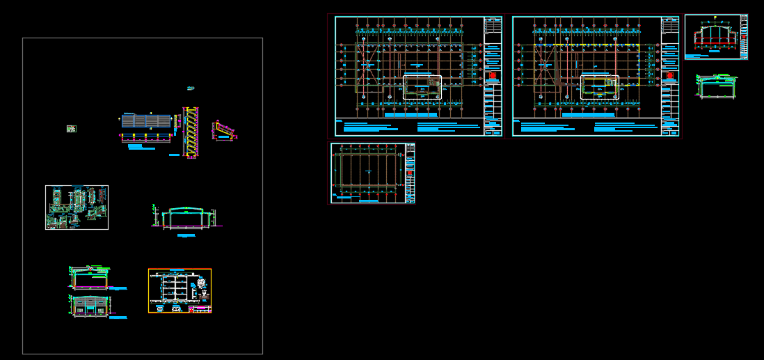
Những bản vẽ chúng tôi đem lại luôn rất đầy đủ gồm kiến trúc và kết cấu… Các bản vẽ thì được trình bày rõ ràng, đường nét in thì theo tiêu chuẩn VN rất chuyện nghiệp…
Trong bản vẽ này thì gồm các mặt bằng đầy đủ chi tiết kích thước, các kết cấu đúng layer, và các file nhỏ như chi tiết cửa, các cửa chớp… rất đầy đủ cùng xem kĩ hơn các hình ảnh dưới đây:




Tải “File cad nhà công nghiệp 2 tầng”: Tại đây
==========================================
❗ Khóa học Revit kết cấu online miễn phí tại đây: https://www.youtube.com/watch v=WqKoqDskdcA&list=PL4FiGIIp8Nq8T6oVl5Co1kTqpDxkspgaI
❗ Khóa học Revit kiến trúc online miễn phí tại đây: https://www.youtube.com/watch?v=pWN6lMmnFXQ&list=PL4FiGIIp8Nq9Qomvq10T_15RnVPafZxY_
❗ Khóa học Revit Autocad online miễn phí tại đây: https://www.youtube.com/watch?v=ihPvg3Zx9NU&list=PL4FiGIIp8Nq95CUA597tu3APLC9ADNCQh
❗ Khóa học Revit Etabs online miễn phí tại đây: https://www.youtube.com/watch?v=AJdt4EwZ7to&list=PL4FiGIIp8Nq-n-l8eQoMt4XJaBUDuJaZR
❗ Tổng hợp thư viện miễn phí tại đây: https://www.youtube.com/watch?v=fwmv9cPDDgs&list=PL4FiGIIp8Nq_nuS12V2BoUD4qDgxaafxv
==========================================
🌱Link cài đặt phần mềm Revit tại đây: https://bim-house-edu.com/chuyen-muc/phan-mem-revit
🌱Link cài đặt phần mềm Autocad tại đây: https://bim-house-edu.com/chuyen-muc/phan-mem-autocad
🌱Link cài đặt phần mềm Etabs tại đây: https://bim-house-edu.com/chuyen-muc/phan-mem-etabs ==========================================
✔️Link cài đặt Naviate Revit 2019, Naviate Revit 2020, Naviate Revit 2021… tại đây: https://bim-house-edu.com/chuyen-muc/naviate
✔️Link cài đặt Enscape Revit tại đây: https://bim-house-edu.com/chuyen-muc/enscape ==========================================
👍Link tham khảo Dự án bằng Revit tại đây: https://bim-house-edu.com/chuyen-muc/do-an-revit
👍Link tham khảo Dự án bằng Autocad tại đây: https://bim-house-edu.com/chuyen-muc/du-an-autocad ==========================================
⛔Link cài bài tập thực hành Revit Khóa học online miễn phí tại đây: https://bim-house-edu.com/chuyen-muc/bai-tap-khoa-hoc-revit-online
==========================================
🔒Link đăng ký các khóa học Autocad- Revit- Etabs có phí tại đây: https://bim-house-edu.com/chuyen-muc/tuyen-sinh
==========================================
⚡️⚡️LIÊN HỆ NGAY ĐỂ ĐƯỢC TƯ VẤN MIỄN PHÍ:
🏡 Địa chỉ: 92 Đặng Huy Trứ (gần ĐHBK Đà Nẵng)
☎ Hotline/ Zalo: 0978449221
🎯 Website: https://bim-house-edu.com/
📌 Page Facebook thiết kế: https://www.facebook.com/ThietkevaXaydungnhaDaNang/
📌 Page Facebook Autocad: https://www.facebook.com/dayautocaddanang
📌 Page Facebook Revit: https://www.facebook.com/HocRevitDaNang
📌 Group facebook: https://www.facebook.com/groups/448020306064880
📌 Kênh Youtube: https://www.youtube.com/channel/UCH0ij8wlyNxOFtnLsSnuXuQ
📌 Group Zalo https://zalo.me/g/vbjjis180
📌 Kênh Tiktok https://vt.tiktok.com/ZSJ3Mo
Các bạn cho tôi một lời cảm nhận ở dưới comment để tạo nguồn động lực lớn để tôi tạo ra nhiều hơn

