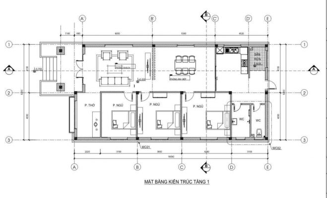
Chia sẽ mẫu nhà cấp 4 hiện đại năm 2021.
Xin chào bạn, tôi Văn Thêm (Nick FB Develope Partner) đây ạ, zalo tôi : 0978449221 Rất nhiều bạn Inbox trong Cty BIM House, nên tôi chia sẽ các bạn, hy vọng sẽ giúp ích đến các bạn. Có thể liên hệ tôi qua các kênh sau: Zalo : 0978.449.221 ,Group FB: BIM House- BIM Edu






Xem thêm các mẫu khác được yêu thích nhất tại đây
———————————————————————-
⚡️⚡️LIÊN HỆ NGAY ĐỂ ĐƯỢC TƯ VẤN MIỄN PHÍ:
🏡 Địa chỉ: 92 Đặng Huy Trứ (gần ĐHBK Đà Nẵng)
☎ Hotline/ Zalo: 0978449221
🎯 Website: https://bim-house-edu.com/
📌 Page Facebook thiết kế: https://www.facebook.com/ThietkevaXaydungnhaDaNang/
📌 Group facebook: https://www.facebook.com/groups/448020306064880
📌 Kênh Youtube: https://www.youtube.com/channel/UCH0ij8wlyNxOFtnLsSnuXuQ
📌 Group Zalo https://zalo.me/g/vbjjis180
📌 Kênh Tiktok https://vt.tiktok.com/ZSJ3Mo
⚡️⚡️XEM CÁC CÔNG TRÌNH TIÊU BIỂU BIM HOUSE:
⚡️⚡️XEM CÁC KHÓA ĐÀO TẠO, CHÚNG TÔI TUYỂN SINH THƯỜNG XUYÊN CÁC KHÓA HỌC THIẾT KÊ:

