Xin chào bạn, tôi Văn Thêm (Nick FB Develope Partner) đây ạ, zalo tôi : 0978449221
Rất nhiều bạn Inbox trong Revit Đà Nẵng hỏi tôi nên tôi tổng hợp lại kiến thức cho các bạn về View range, hy vọng sẽ giúp ích đến các bạn.
Có thể liên hệ tôi qua các kênh sau: Zalo : 0978.449.221 ,Page FB: Revit Đà Nẵng, Page FB: Autocad Đà Nẵng, Page FB: Cty BIM House, Group FB: BIM House- BIM Edu
- View range trong Revit cho phép thiết lập giới hạn khung nhìn ngang và hiển thị vật thể trên mặt bằng. Mỗi mặt phẳng hiển thị đều có thuộc tính view range. Còn được gọi là phạm vi nhìn khả dụng. Mỗi mặt phẳng ngang được xác định bởi những giới hạn là Top, Cut Plane, and Bottom.
 - Top và Bottom trong mặt phẳng ngang giới hạn mặt trên và mặt dưới của View Range. Cut Plane là mặt cắt xác định chiều cao khả dụng của khung nhìn. Tại đây các vật thể được hiển thị lên mặt phẳng. Đây là 3 giới hạn để định nghĩa View Range trong Revit.
 - View depth là một mặt phẳng bổ xung vượt quá phạm vi khung nhìn chính. Thay đổi độ sâu hiển thị để hiển thị những vật thể nằm phía tầng dưới. Mặc định thì View depth trùng với Bottom.
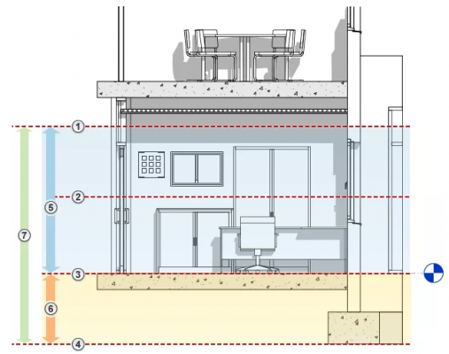
 - Các bạn xem hình ảnh bên dưới để hiểu kỹ hơn về View Range
 - Top = 1. Cut Plane = 2, Bottom = 3. Offset = 4. Primary Range = 5. View Depth = 6. Tất cả chúng cho ta View Range = 7.

 
Những đối tượng bị cắt ngang bởi Cut Plane:
- Trong khung nhìn plane view, revit sử dụng các quy tắc sau để hiển thị các phần tử được giao cắt bởi cut plane:
- Các phần tử được hiển thị bằng việc cắt vào độ dày nét vẽ của phần tử đó
 - Khi phần tử đó không có độ dày, phần tử đó không được cắt. Lúc này phần tử được thể hiện bằng hình chiếu.
 - Những ngoại lệ trong việc hiển thị các phần tử giao cắt bởi cut plane
 - Các bức tường thấp hơn 2 mét sẽ không bị cắt ngay cả khi chúng cắt ngang mặt cắt.
 - Chiều cao 2 mét được đo từ hộp ranh giới đến dưới cùng của view range.
 - Trong hình ảnh bên dưới bạn sẽ hiểu hơn về thuộc tính này.
 - 
 - 
 
 - Trong phần được tô màu xanh lam thể hiện các phần tử được cắt bởi cut plane
 - (1) Thể hiện những đối tượng được cắt vào độ dày nét vẽ
 - (2) Thể hiện những đối tượng nhìn thấy nhưng không cắt trực tiếp vào độ dày nét vẽ
 
Các bạn có thể xem kỹ hơn ở video này nhé.
Xem thêm:
Thư viện REVIT cửa đi, cửa sổ, lan can cầu thang, mái ngói, mái tôn, bàn ghế, thiết bị vệ sinh… đầy đủ mọi thứ xem: Tại đây
Thư viện AUTOCAD cửa đi, cửa sổ, bàn ghế, thiết bị vệ sinh… đầy đủ mọi thứ xem: Tại đây
Dự án bằng REVIT nhà phố, biệt thự, nhà cao tầng… đầy đủ mọi thứ xem: Tại đây
Đồ án môn học bằng REVIT đầy đủ mọi thứ xem: Tại đây
Phần mềm REVIT đầy đủ mọi phiên bản xem: Tại đây

					
